
Konzeptioneller und Konstruktiver Entwurf | 1. Semester | Wintersemester 2019/20
Die in den 1950er Jahren entstandenen Zeilenbauten sind eine der häufigsten Bauformen der deutschen Nachkriegsmoderne. Nicht nur ihre Bausubstanz ist veraltet, auch viele der Bewohner sind mit den Häusern alt geworden. Die Gebäude in Stuttgart-Rot wurden für eine andere Gesellschaft und für andere Bedürfnisse gebaut. Aufgabenstellung des Entwurfs war es, neue Wohn- und Lebensformen in den Zeilenbauten zu ermöglichen – durch Co-Living mit einem Generationen-Mix, gemeinsam genutzte Infrastruktur, eine Aufwertung der Freiräume und die thermische Sanierung der Gebäudehülle.
Die Arbeit wurde von Prof. Jens Betha und Prof. Wolfgang Grillitsch betreut.

Rachel Magee versucht den klassischen Wohnungsverband aufzulösen. Die Bewohner können ihre Wohnungen durch Gemeinschaftszimmer in einer vorgeschalteten Struktur erweitern.

Anna-Lena Mergenthaler setzt bei ihrem Projekt auf eine Programmierung des Wohngebäudes, die an ein Hostel denken lässt. Ein Gerüst vor dem Haus ermöglicht dies mit einer neuen Erschließung und bietet eine halb-private Zone zur Aneignung im Aussenraum.

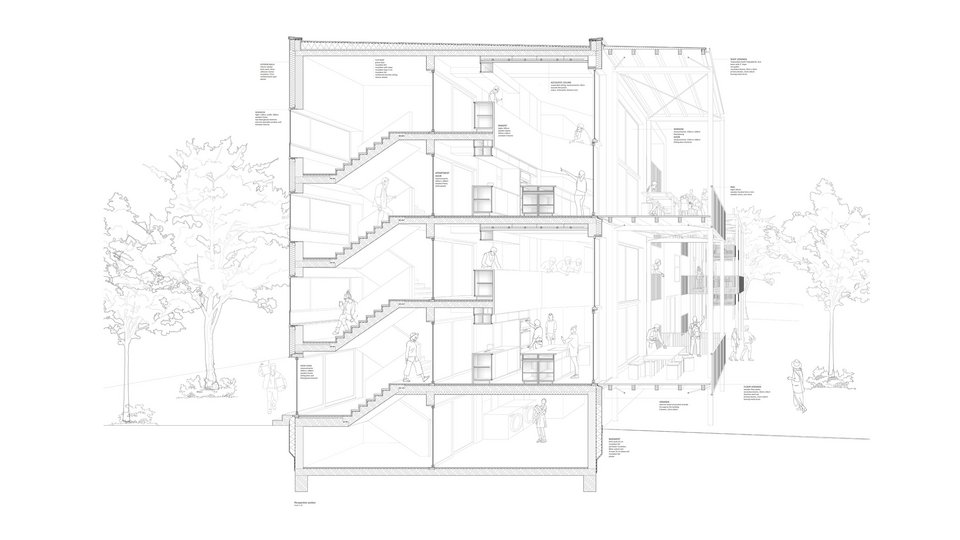
Sarah Klumpp kombiniert neue Erschließungstürme und Gemeinschaftsküchen zu einer hausübergreifenden Großform. Diese Zäsuren verwandeln die gesamte Zeile in einen Baukörper mit wechselnden räumlichen Situationen.

Luisa Mannsperger packt das gesamte Gebäude in eine Klimahülle. Die Idee ist nicht neu, aber Nutzungsideen für diese neu entstandenen Binnenräume, die als Pufferzone zwischen Aussen- und Innentemperatur fungieren, ergänzen die Innenräume ideal.

Anna Aichele öffnet in ihrem Projekt das Wohnen für neue Aktivitäten. Öffentliche Funktionen werden in das private Gebäude geholt. Die 75-jährige Bewohnerin bäckt gerne und verkauft ihren Kuchen im Café, der Hipster tritt im Mehrzweckraum als Standup-Comedian auf und der rüstige Rentner bietet in seiner Werkstatt einmal wöchentlich eine Fahrrad-Sprechstunde an.

Marie Rünzi zeigt Potentiale der Zeilen, indem sie ausgehend von den Innenräumen mehrschichtige Raumzonen erzeugt, die Funktionsüberlagerungen ermöglichen und die Kommunikation zwischen den Bewohnern fördern.

Gemeinsame Interessen und Aktivitäten verbinden Menschen. Laura Prokopczuk verräumlicht diesen Ansatz und verleiht dem Gebäude durch die Dachform ein neues Erscheinungsbild. Dabei entstehen sowohl eine neue Aussenform als auch Innen- und Aussenbereiche mit hohen Aufenthaltsqualitäten.

Franziska Ottilie Geesmann reflektiert in ihrer Arbeit konsequent den Unterschied zwischen dem Familienleben der Nachkriegszeit zur Entstehungszeit der Gebäude und der heutigen Situation, die soziale Gefüge ausserhalb der Familie immer wichtiger werden lässt. Waren es früher einzelne Wohnungen mit kleinen Zimmern innerhalb der Wohnung, so ist es heute eine zusammengewürfelte Hausfamilie. Der Entwurf versucht allen ihren Raum zu geben, ein Ort an dem zusammen gekocht, gegessen und gelacht wird.

Raphael Maier reiht kleine, private »Mini-Lofts« entlang einer halböffentlichen »Porch«. Die Küchen orientieren sich in den oberen Geschossen – durch Lichtöffnungen getrennt – entlang dieser Erschliessung und die Wohn- und Schlafbereiche zur Gartenseite.

Konzeptioneller und Konstruktiver Entwurf | Annika Schürk, Ann-Kathrin Simon & Judith Lapp | 1. Semester | Wintersemester 2020/21
Bei dem Projekt AddUnity von Annika Schürk, Ann-Kathrin Simon und Judith Lapp steht die Gemeinschaft im Vordergrund. Um der vorherrschenden Anonymität in den monotonen Zeilenbauten des Gebiets in Stuttgart Rot entgegenzuwirken, werden mit alten Beständen neue Freiräume kreiert.
In der Zeit zwischen dem finalen Abriss und dem Neubau des Quartiers soll mithilfe von Teilabrissen und temporären Ergänzungen eine Kommunikationsplattform geschaffen und Impulse gesetzt werden, wodurch neue Möglichkeitsräume entstehen.
Die Ergänzungen in Form eines modifizierten Gerüstsystems weisen unterschiedliche Nutzungsmöglichkeiten auf und ermöglichen einen Übergang zwischen öffentlichen Plätzen bis hin zu privaten Balkonerweiterungen. Dadurch werden die großzügigen Freiflächen zwischen den Bestandsgebäuden aktiviert, belebt und genutzt.
Das standardisierte Modul-Gerüstsystem kann durch kleine Eingriffe modifiziert werden, ohne dabei in die Struktur des Gerüsts einzugreifen. Einfache Möbel können im Zuge eines Workshops von den Bewohnern selbst gebaut werden, sodass sich jeder aktiv an dem Projekt beteiligen kann. Durch die verschiedenen Modulgrößen kann sich das Gerüst zudem optimal in Höhe und Breite an die Bestandsgebäude anpassen.
Die Arbeit wurde von Prof. Wolfgang Grillitsch und Prof. Karsten Weigel betreut.



