
Bachelorarbeit von Marie Jähnisch im Sommersemester 2024 | Schwerpunkt: Raum
"WohnVielfalt - Zusammen Sozial Leben"
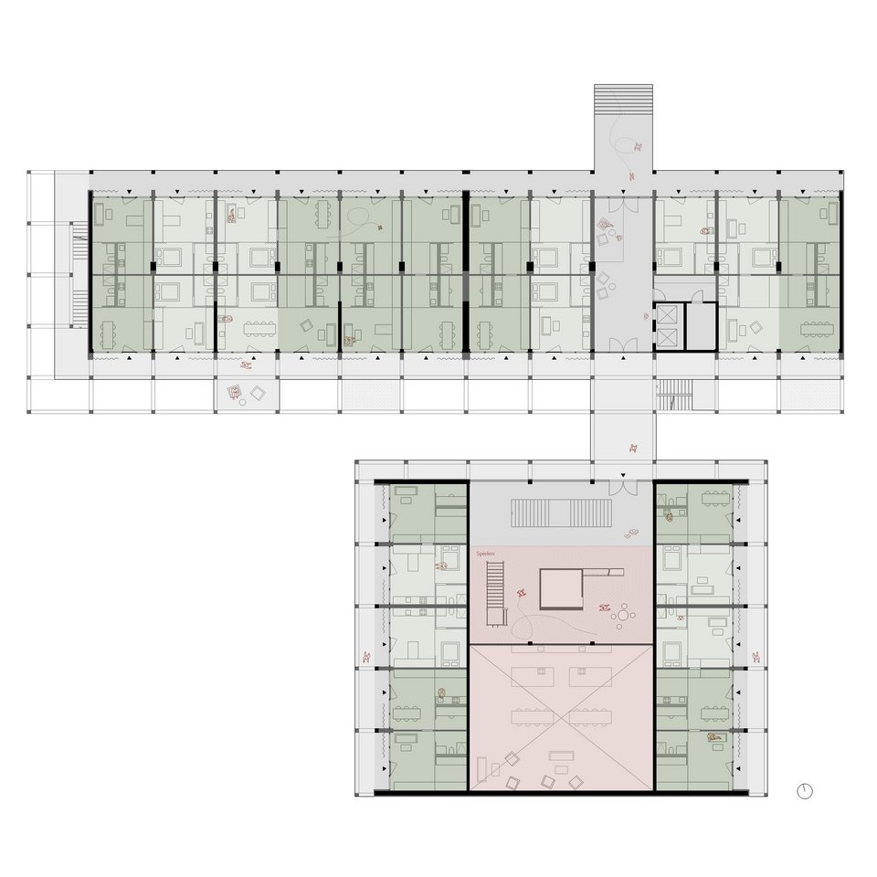
Die Anzahl an Sozialwohnungen in Deutschland sinkt stetig, obwohl die Armut immer weiter zunimmt und es einen großen Bedarf an gefördertem Wohnraum gibt.Der Entwurf nutzt diese Chance und schafft dabei Strukturen, um ein Zusammenleben verschiedener Lebensstile und Einkommensklassen auf einem ehemaligen Hochschulgelände in Kaiserslautern zu ermöglichen. Zudem soll der teils geförderter Wohnraum flexibel genutzt werden können und anpassbar
an unterschiedliche Lebenssituationen sein.
Die Bachelorarbeit wurde betreut von Prof. Jens Betha






