
Master-Thesis | Ruben Mast | 4. Semester | Sommersemester 2020
Für die anstehende Sanierung des Littmannbaus soll auf dem Areal der Wagenhallen ein Interimsgebäude zur temporären Opernnutzung entstehen. Nach der Sanierung soll es einer neuen Nutzung zugeführt werden. Der Entwurf sieht einen klaren Baukörper vor, der sich prominent in der städtebaulichen Situation positioniert, aber dennoch einen freien Blick auf die Wagenhallen und den vollständigen Erhalt der Containercity ermöglicht.
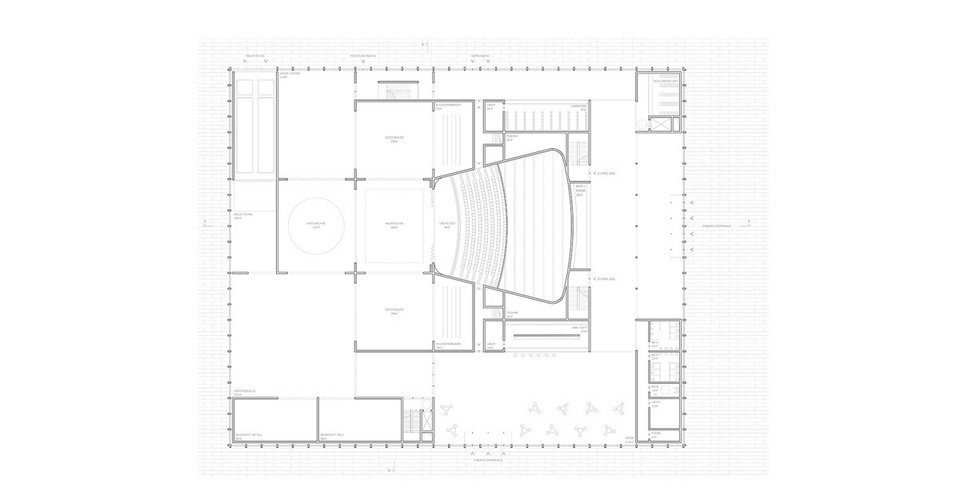
Der Saal als introvertiertester Punkt löst sich nach außen hin auf und mündet in einer transparent-transluzenten Fassade. Nebennutzungen werden als eingestellte Elemente kompakt im Grundriss organisiert. Über dem Bühnenbereich befinden sich Flächen für Künstler, Musiker und Intendanz.
Zum Außenraum hin bildet eine konstruktiv eigenständige Gebäudehülle den Raumabschluss. So wird ein nachträglicher Rückbau der Opernstruktur ermöglicht und eine nutzungsoffene Ausgangslage für die Nachnutzung geschaffen. Während das Gebäude am Tag als neutrales Volumen erscheint, tritt am Abend der beleuchtete Innenraum nach außen und der Entwurf präsentiert sich dem Areal der Wagenhallen als leuchtender Stadtbaustein.
Die Arbeit wurde durch Prof. Tobias Wulf betreut.











