
Entwurf Vertiefung Städtebau | Steffen Heinz | 2. Semester | Sommersemester 2020
In Stuttgart Feuerbach soll inmitten des Gewerbegebiets eine Werkssiedlung für die Firma Bosch entstehen. Der Entwurf besteht aus fünf in sich aufgelösten Blöcken mit unterschiedlicher Dichte sowie verschiedenen Typologien. Dank einer übergreifenden Vernetzung durchbricht das neue Quartier die bestehende Gleisbarriere und lässt die Stadt zusammenwachsen. Das Motiv der Allee markiert die Hauptverkehrswege für Fußgänger und Radfahrer. Zwei großzügige Plätze mit gewerblicher Nutzung in der Erdgeschosszone bilden das Zentrum des urbanen Gebiets.
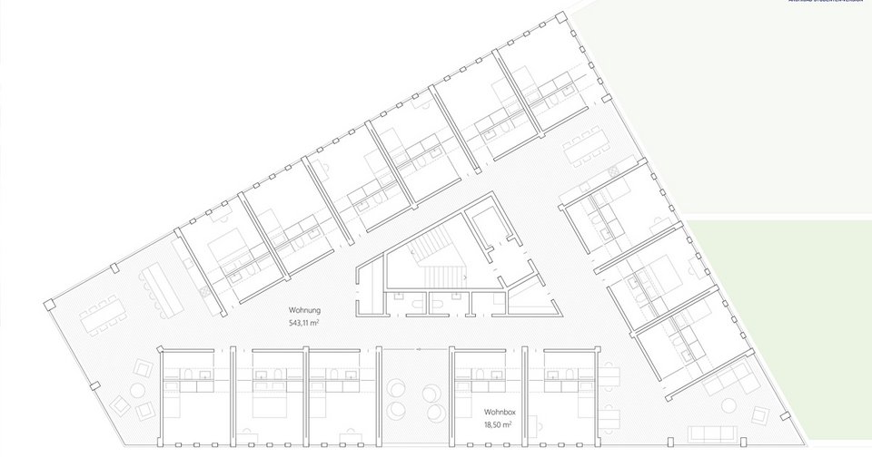
In einer Zeit rückläufiger Haushaltsgrößen und zunehmender Individualisierung bedarf es dringend neuer Wohnformen. Der Urban Complex im Zentrum des Quartiers soll exemplarisch dafür vertieft werden. Er beherbergt neben Gewerbe- und Büroflächen auch Shared Space Wohnungen. Dabei werden drei verschiedene Typen von Raumzellen für 1–2 Personen zu unterschiedlichsten Wohnungen zusammengeschaltet. Alle übrigen Flächen werden gemeinschaftlich genutzt. Dadurch wird der Platzbedarf und somit die Kosten für das Individuum erheblich reduziert, ohne dass auf Luxus verzichtet werden muss. An der Fassade lassen sich Raumzellen und Gemeinschaftsbereiche ablesen.
Die Arbeit wurde durch Prof. Rebecca Chestnutt und Prof. Peter Schlaier betreut.











