
Entwurf mit Vertiefung Technik | Daniel Misch & Hannes Schüssler | Sommersemester 2024 | 3. Semester
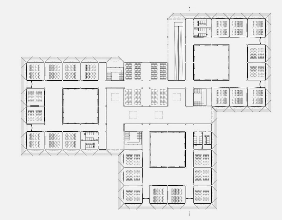
Die Europaschule Kerpen wurde gemäß der Aufgabenstellung, nach Cartagena in Kolumbien versetzt und dementsprechend angepasst. Besonderes Augenmerk wurde hierbei auf die Materialität und die Struktur des Gebäudes gelegt, welche durch Analyse der Architektur und Kultur, aber auch des Klimas Kolumbiens erarbeitet wurden. Durch die Öffnung des Gebäudes, Umstrukturierung des Grundrisses, Errichtung einer zweiten Schale und Implementierung eines neuen Lüftungssystems, wurde es möglich, die Schule in Cartagena betreiben zu können.
Die Studienarbeit wurde von Professor Volkmar Bleicher betreut.




