Entwerfen 1 im Bachelor Architektur

20.04.2020, von Prof. Jonathan Scheder

Aufgabenstellung:

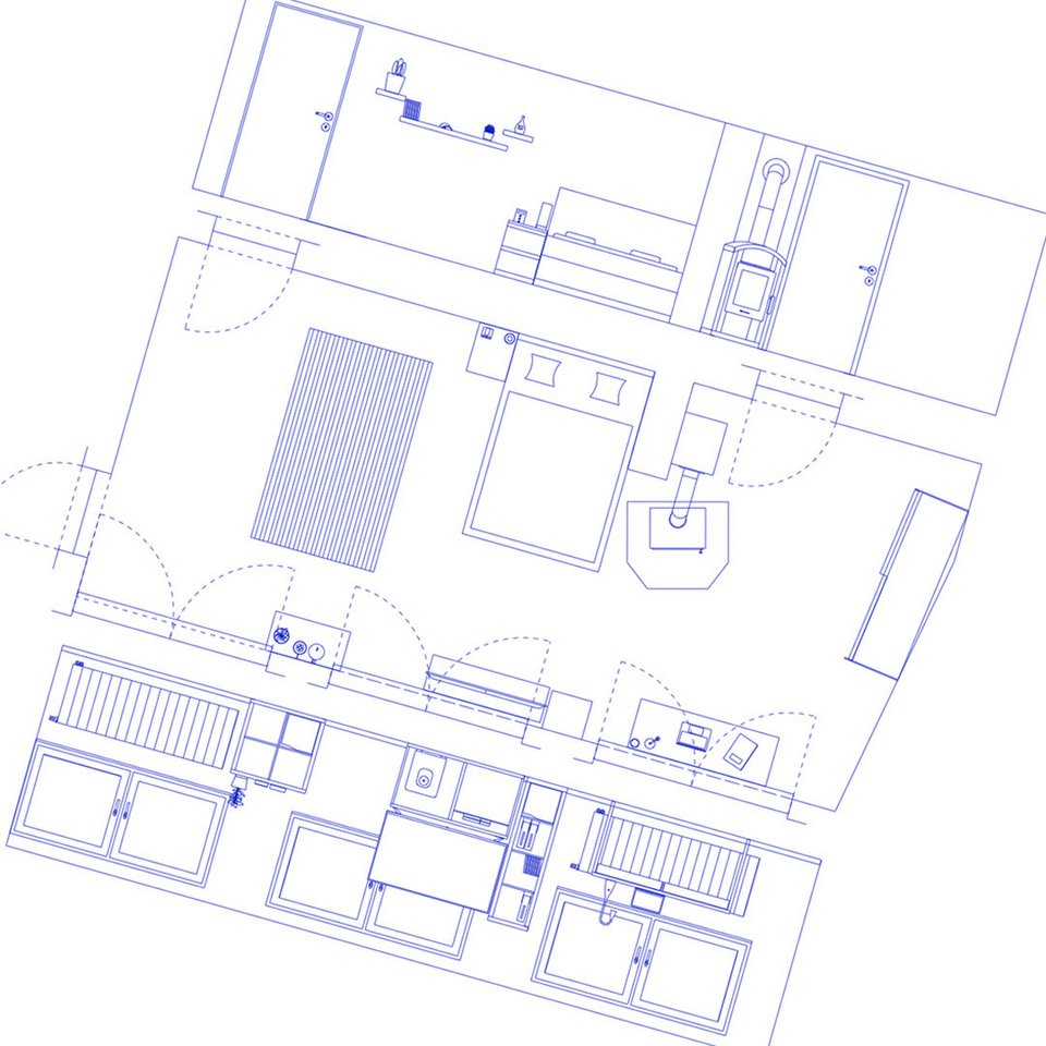
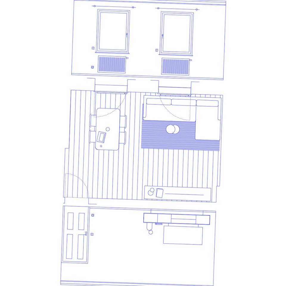
Raum ist der bloßen Sinneswahrnehmung nicht unmittelbar zugänglich. Er lässt sich selbst nur schwer beschreiben wahrnehmen oder erfahren. Erst durch begrenzende und definierende bauliche Elemente wie Wände, Boden und Decke wird er als architektonischer Raum bewusst begreifbar. Im Zyklus Raumlesen erkunden die Studierenden alltägliche räumliche Situationen und Atmosphären.

In der ersten Aufgabe zeichnen die Studierende maßstäbliche Pläne Ihres Zimmers bzw. dem Raum in dem Sie arbeiten und geben so auch Einblick in die aktuelle Lernsituation während der Corona-Pandemie.