An der Hochschule für Technik Stuttgart wird momentan daran geforscht, die urbane Nachhaltigkeit und Widerstandsfähigkeit in der Stadt Stuttgart mit Hilfe von Geoinformationssystemen (GIS) und Mikroklimasimulationen zu verbessern. Muhtasimul Islam Rushdi untersucht unter der Leitung von Prof.-Dr. Angela Blanco-Vogt die Auswirkungen von Grünflächen auf das städtische Mikroklima, wobei der Schwerpunkt auf der Abschwächung des Urban Heat Island (UHI)-Effekts in Stuttgarts städtischer Umgebung liegt

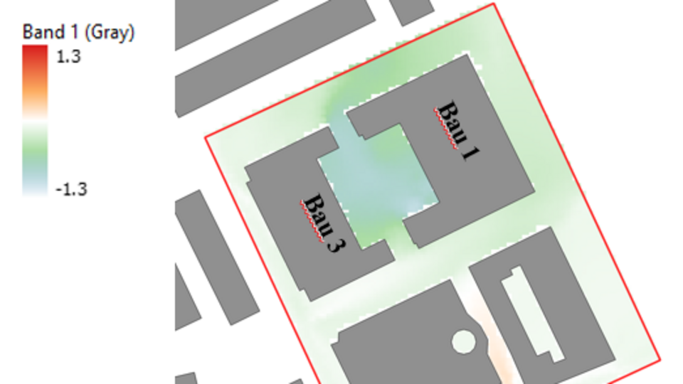
In einer aktuellen Arbeit wird die Beziehung zwischen simulierten Mikroklimadaten aus der ENVI-met Software und realen Messungen untersucht. Die Studie, die an der HFT Stuttgart durchgeführt wurde, zeigt, dass die Umwandlung von befestigten Flächen in Grünflächen zu erheblichen Temperatursenkungen führen kann, die einen besseren thermischen Komfort und ökologische Nachhaltigkeit fördern. Konkret wurden auf Basis von Simulationen in einigen Bereichen Temperatursenkungen von bis zu 1,15°C beobachtet, was das Potenzial für städtebauliche Strategien zur Bekämpfung der klimatischen Herausforderungen in der Stadt verdeutlicht.

Die Untersuchung zeigte eine starke Korrelation zwischen den simulierten und den tatsächlichen Temperatur- und Luftfeuchtigkeitsdaten, mit R²-Werten von bis zu 0,93 (= 93%, sehr hohe Anpassung des Modells an reale Messdaten), was die Zuverlässigkeit von ENVI-met als wichtiges Instrument für die Analyse des städtischen Mikroklimas bestätigt. Dies unterstreicht das Engagement der HFT, innovative Technologien wie GIS einzusetzen, um klimabewusste Lösungen zu entwickeln, die sowohl resilient als auch vernetzt sind.

Die folgenden Bilder veranschaulichen die GIS-Analyse und die Veränderungen der Mikroklimavariablen (Temperatur und relative Luftfeuchtigkeit) durch Veränderung des Grünflächenanteils. In einem Bild wird die jeweils hinzugefügte Grünfläche dargestellt. Das andere Bild zeigt die Auswirkung auf die Lufttemperatur (in °C, blaue/grüne Bereiche = Temperaturabnahme).

Diese Arbeit unterstützt die strategische Vision der HFT Stuttgart, klimakompetent - resilient - vernetzt zu sein, und zeigt, wie Geoinformationssysteme (GIS) und Simulationstechnologien eine nachhaltige und anpassungsfähige Stadtgestaltung vorantreiben können. Es ist ein Beleg für das Engagement der Hochschule für angewandte Forschung, die direkt zu einer klimabewussten Stadtplanung in Stuttgart und darüber hinaus beiträgt.

An der HFT Stuttgart erforschen wir nicht nur die Zukunft - wir gestalten sie auch.

Veröffentlichungsdatum: 25. Juni 2025
Von Muhtasimul Islam Rushdi (muhtasimul.rushdi@hft-stuttgart.de)